Buda Hills Residence Project II DISTRICT Hárshegyi

100
3
6

Elevator

true

Parking

true

Year Built

Building Type

Block

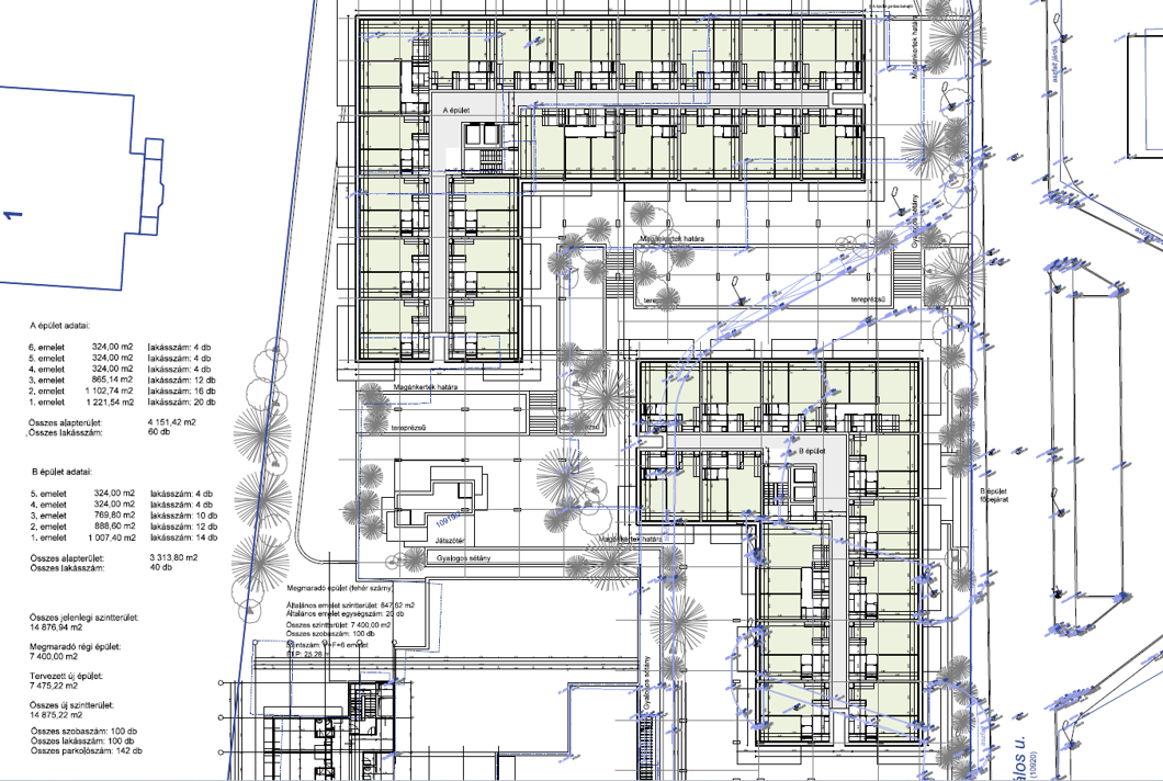
The project consists of 2 residential buildings in total of 7.475 m2. Constructing a total of 100 premium-quality apartments across five and six floors buildings, offering panoramas of the Buda hills.

The development includes high level architectural solutions and high-quality installed materials. The premium apartments are designed in various sizes and layouts, featuring spacious green terraces, with optimal thermal comfort ensured by ceiling cooling and heating systems. Underground parking is provided.

The II district is the nicest living district in Budapest, sounrded by green hills. The area offers perfect home for families who wants to live in tranquility nature but still very close to the center. Value of properties in the II district increased dramatically in the past few years and expected to grow. The project is boardering Budakeszi út and Hárshegyi út. Located on Hárshegyi neighbrhood, amazing green view, quality air and nature

 

Share:

I'm Interested - Connect Me